Математика 6 класс учебник Мерзляк, Полонский ответы – номер 246

  • Тип: ГДЗ, Решебник.
  • Автор: Мерзляк А. Г., Полонский В. Б., Якир М. С.
  • Год: 2024.
  • Издательство: Просвещение.
  • Серия: Школа России (ФГОС).
  • Издательство: Просвещение.

Номер 246.

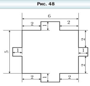
Из листа жести вырезали фигуру, изображенную на рисунке 58 (размеры даны в метрах).
1) Найдите периметр и площадь полученной фигуры.
2) Сколько краски потребуется для окрашивания фигуры с двух сторон, если расход краски на однослойное покрытие 1 м² составляет 200 г. Ответ выразите в килограммах и граммах.

Математика 6 класс учебник Мерзляк номер 246
Ответ:

1) Р = 5*2 + 6*2 + 1*8= 10 + 12 + 8 =30 см
S = 5*6 + 2*1*2 + 1* 1*2 = 30 + 4 + 2 = 36 см²
2) 36*2*200 = 14400 г = 14 кг 400 г потребуется краски

Конец страницы
Переход на другие страницы Содержание
Информация на этой странице была полезной?
0/5 (0 голосов)
Нашли ошибку на сайте? Помогите нам ее исправить!

С подпиской рекламы не будет

Подключите премиум подписку со скидкой в 40% за 149 ₽

Понравились решения?
Напишите свой комментарий.

Вам может быть интересно